北京中軸線都市デザイン, 北京 中国
Urban Design of the Central Axis in Beijing, China
北京前門街歴史地区改造計画, 北京 中国
Protection, Renovation and Development for the Dangerous Houses in Qianmen Area, Beijing, China
大連港東部地区ウォーターフロント計画, 大連 中国
Darian Port Waterfront Development Masterplan and Landscape, Dalian China
ウェイファン海浜地区マスタープラン, 山東省 中国
Weifang Waterfront Development Masterplan, Shandong China
上海四川北路地区計画, 上海 中国
Daliang Road Development in Yangpu Area, Shanghai, China
西安大雁塔周辺計画及び商業施設設計, 西安 中国
Xian Development and Commercial Facility, Xian, China
蘇州河歴史保全地区都市計画, 上海 中国
Protection, Renovation and Development for Suzhou River district, Shanghai China
金水路景観マスタープラン, 鄭州 中国
Jinshui Road Landscape, Zhengzhou China
青島黄島区森林公園マスタープラン, 青島 中国
Jhonan Forest Park Masterplan, Qingdao China
崇明島地区マスタープラン, 上海 中国
Chóngmíng Dǎo Ecological Development Area Conceptual Planning, Shanghai, Chin
無錫ソフトフェアーパーク及びインダストリアルパークマスタープラン, 上海 中国
WUXI Software Park Master Plan, Wuxi, China
宝天集団住宅開発マスタープラン及び建築・インテリア・造園設計, 西安 中国
Baotian Group Housing Development Msterplan,Xian China
No,1別荘プロジェクト, 山東 中国
No.1 project Housing Masterplan, Weihai China
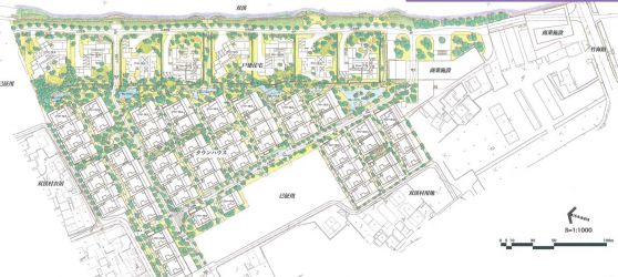
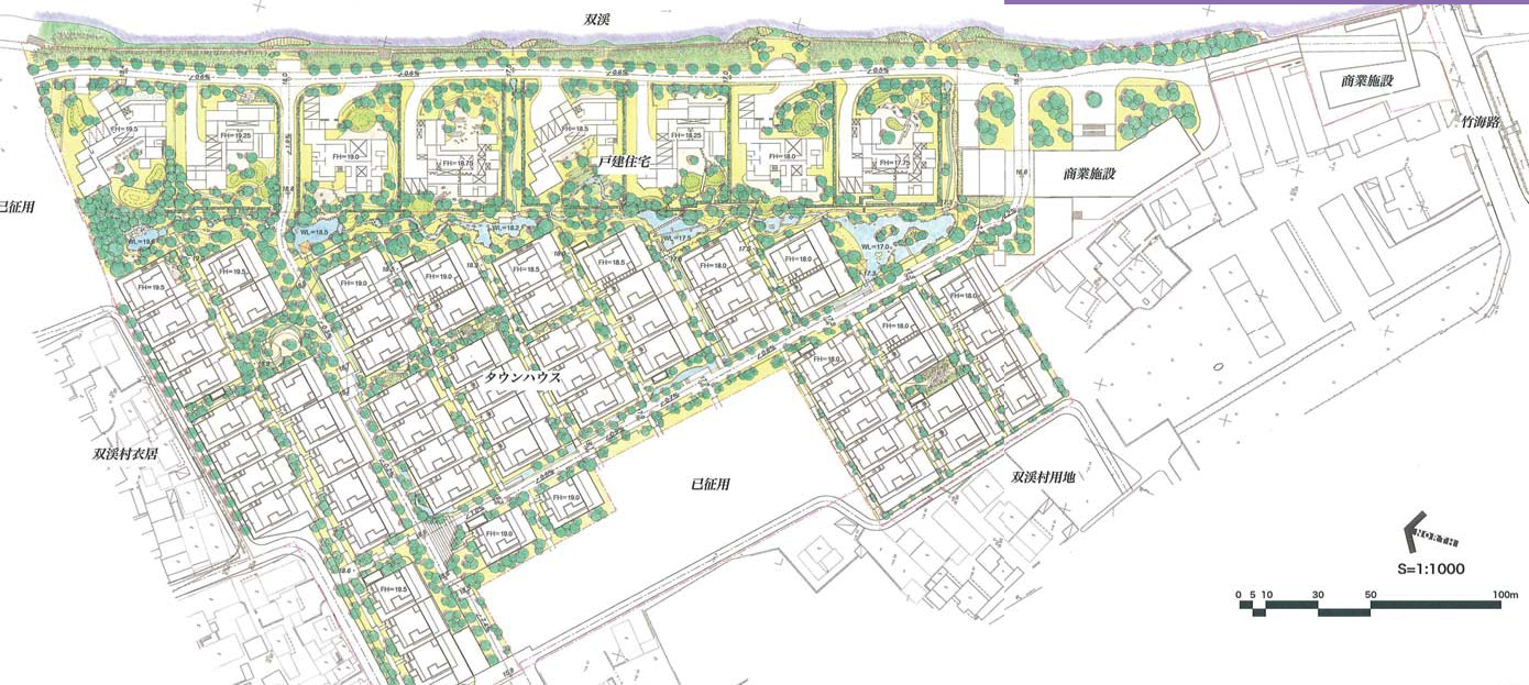
杭州金山別荘マスタープラン, 杭州 中国
Xinjinshan Housing Masterplan, Hangzhou China
パラオKBブリッジリゾートマスタープラン, コロール パラオ
Palau KB Bridge Resort Masterplan, Koror Palau
パラオゴルフリゾートマスタープラン, マルキョク パラオ
Palau Golf Resort Masterplan, Melekeok Palau
西安師範大学マスタープラン, 西安 中国
Shaanxi Normal University Masterplan, Xian China























































































